En bref

  • Ref. : 7342871
  • Kain
  • 4 salle(s) de bain
  • 30 chambre(s)
  • Terrain : 14229 m²
  • Habitation : 3000 m²
  • ≤ € 500k
  • De € 500k à € 750k
  • De € 750k à € 1M
  • + € 1M

Propriété exceptionnelle située à Kain

Nous vous invitons à découvrir cet ensemble immobilier de 3000m² habitables situé au milieu d’un terrain d »1,5 hectare totalement emmuré. La propriété se compose de 2 bâtiments, un bâtiment principal en forme de « T » et un autre...

L'émeraude en un coup d'oeil

Détails de la propriété.

Description détaillée

Nous vous invitons à découvrir cet ensemble immobilier de 3000m² habitables situé au milieu d’un terrain d »1,5 hectare totalement emmuré.
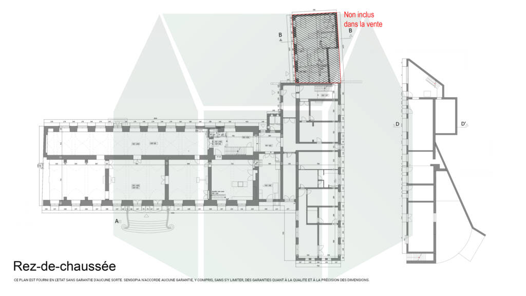
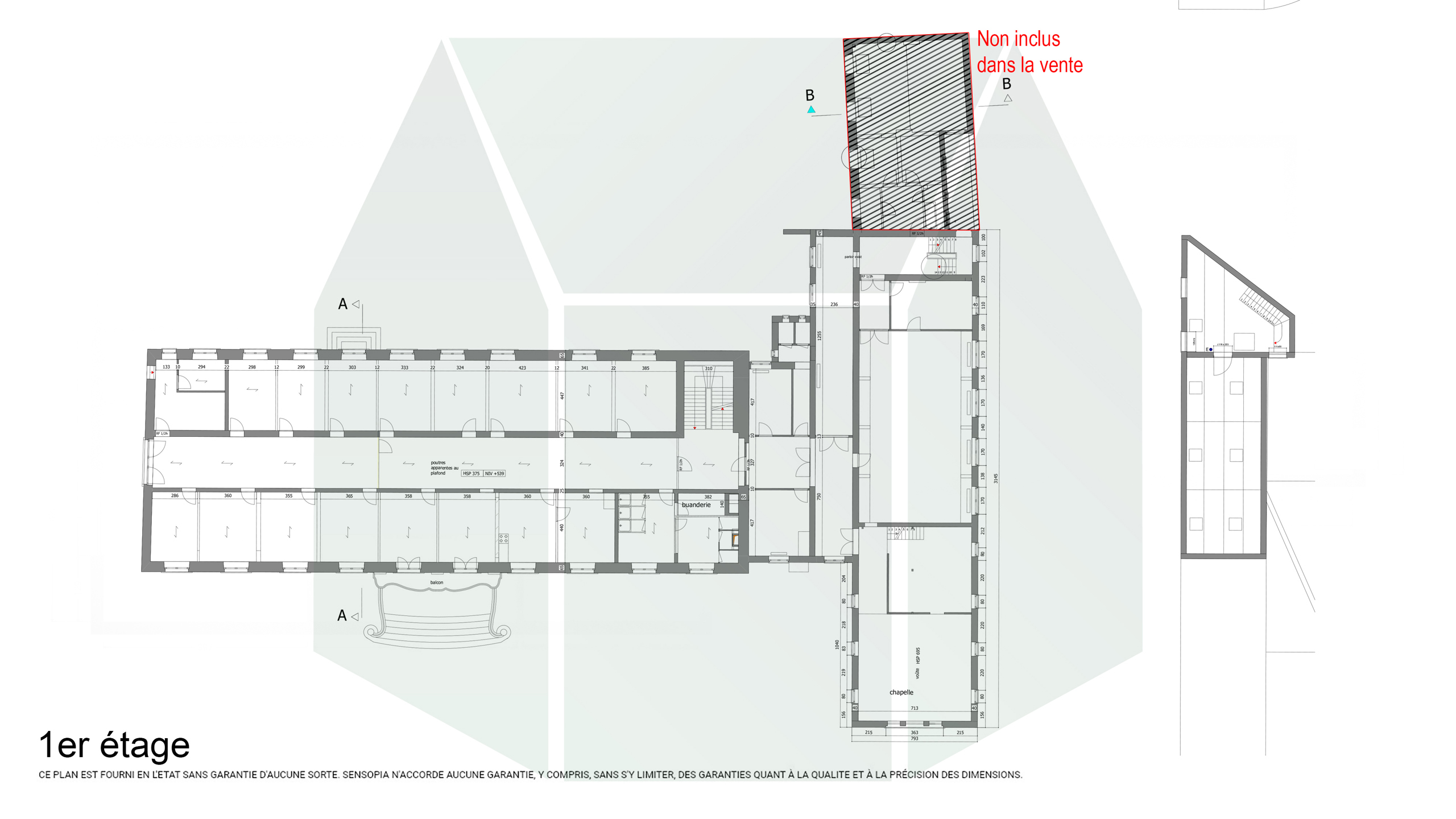
La propriété se compose de 2 bâtiments, un bâtiment principal en forme de « T » et un autre utilisé comme espace de stockage.

Le bâtiment principal se compose deux ailes :

Petite aile :
– Un appartement au rez de chaussée (salon/séjour avec cuisine ouverte, 3 chambres, salle de bain)
– Un appartement au 1er étage (hall, bureau, buanderie, salon/séjour avec cuisine, 5 chambres)
– Une ancienne chapelle

Grande aile :
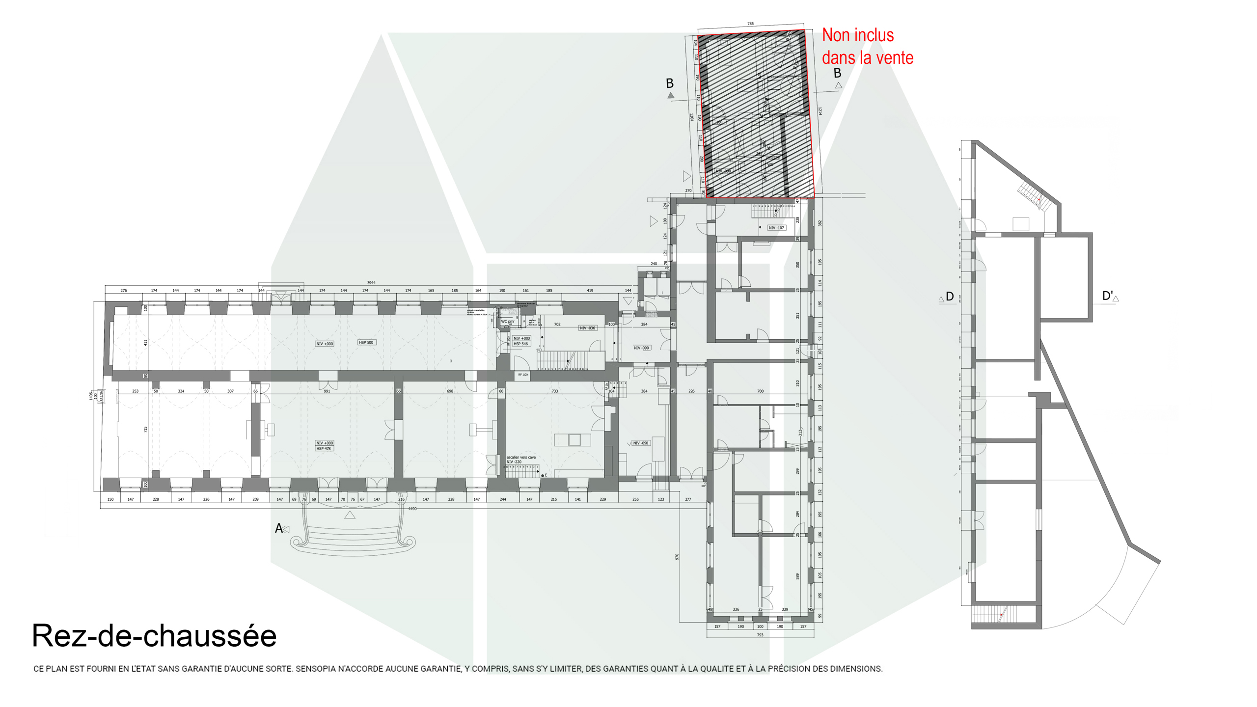
– Rez de chaussée : vaste hall vouté, 4 grandes salles dont une cuisine avec accès aux caves.
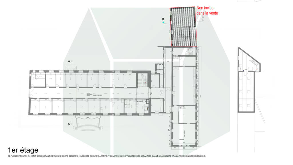
– 1er étage : 12 chambres avec point d’eau, une salle commune avec cuisine.
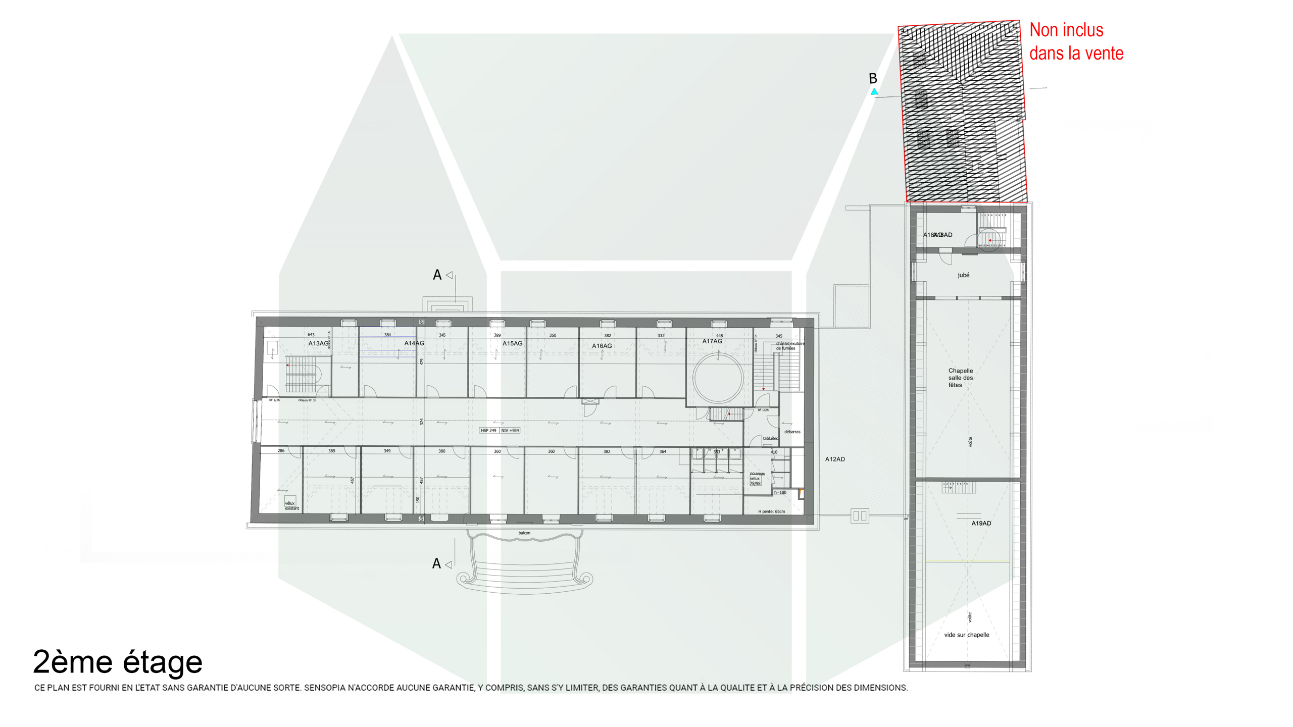
– 2ème étage : 11 chambres avec point d’eau, une salle commune avec cuisine.

La propriété se situe à +/- 2 km de la gare de Tournai et de son centre-ville.
Le parc, d’une rare biodiversité est parsemé d’arbres exceptionnels.
Le site présente de nombreux avantages qui offrent une multitude de possibilités en terme d’exploitation :
Résidentiel, appartements, co-housing, habitats groupés, salle de séminaire, restaurant, hébergement touristique, projet d’agriculture biologique…

Caractéristiques : châssis simple et double vitrage, chaudière aux pellets ÖkoFEN, citerne d’eau de pluie.

Historique
L’Abbaye fut fondée par 13 soeurs cisterciennes en 1238. Elles choisirent ce
lieu pour son calme et sa sérénité en vue de s’y installer. Au regard du nombre
important de saules qu’il y avait dans la région, elles décidèrent d’appeler cette
abbaye, le Saulchoir.
L’abbaye sera habitée et entretenue par les soeurs religieuses pendant cinq
siècles et demi. Suite à la Révolution Française et à l’incendie de l’Abbaye en
1797, les soeurs seront contraintes de se retirer dans une ferme à proximité.
A partir de 1797, le bâtiment passera entre les mains de divers propriétaires
non-religieux pour revenir dans les mains des Dominicains en 1900.
En 1903, les Pères dominicains en firent un couvent d’étude théologique de
grande portée. Ils formèrent des sommités et y abritèrent d’illustres retraitants.
La vie des “Pères blancs” pouvait se résumer en ces termes: recueillement,
étude, paix et intimité avec Dieu. A la veille de la Deuxième Guerre Mondiale,
les Pères dominicains se retirèrent en France.
A partir de 1939, la propriété fut vendue à un spéculateur qui détruisit une partie
du bâtiment pour en vendre les matériaux.
C’est en 1942 que l’Abbaye du Saulchoir se transforma en Carmel avec l’arrivée
des religieuses carmélites. Elles en firent un couvent et restèrent pieuses et
discrètes dans le village de Kain.
De 1997 à 2006, le Carmel fut occupé par une communauté laïque d’une
vingtaine de personnes qui y vécurent ensemble selon des principes d’écologie,
de partage et de solidarité.
Depuis 2007, le site est exploité par la société «Alter Eco», spécialisée en écoconstruction.

> Prix : 1.350.000€

Publicité à caractère non contractuel et ne constituant pas une offre.
Les propriétaires se réservent le droit de décision, d’acceptation ou non sur toute(s) offre(s) soumise(s) pour leur bien.

Caractéristiques principales
Environnement
Energie
  • PEB

    peb
  • Numéro de PEB

    20190711015952
  • E-total

    42975
  • E-Spec

    346 kwh/m²/an

L'émeraude en vidéo

Plans de la propriété

Vous voulez en savoir davantage ?

Nicolas Fournier, notre expert s’occupe de la vente de ce bien. Contactez-le afin de prendre rendez-vous et d'organiser une visite.

Choisi pour vous